広島マンション大図鑑 > 物件カタログ >井口台パークヒルズ壱番館

井口台パークヒルズ壱番館

販売物件

広島電鉄宮島線井口駅周辺物件:井口台パークヒルズ壱番館。身近に人を感じることができる中古マンションです。不動産購入をご検討しているなら、オールハウスが取り扱う広島電鉄宮島線井口近郊の物件をお求め下さい。当社がしっかりとサポート致します。

  • 物件写真
  • 周辺施設
  • 【外観】
  • 【外観】
  • 【外観】
  • 【共有部分】
  • 【駐車場】
  • 【外観】
  • 【外観】

※写真や図と実際の現状とが異なる場合は現状を優先させて頂きます。

コメント
【外観】

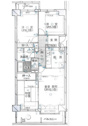
間取り FLOOR PLANS


  • リトルニュートン 井口台保育園 リトルニュートン 井口台保育園
    約805m/11分
  • 井口台シオン幼稚園 井口台シオン幼稚園
    約830m/11分
  • 井口台小学校 井口台小学校
    約377m/5分
  • 井口台中学校 井口台中学校
    約922m/12分
  • ファミリーマート 広島井口台店 ファミリーマート 広島井口台店
    約746m/10分
  • セブンイレブン 広島井口台1丁目店 セブンイレブン 広島井口台1丁目店
    約1227m/16分
  • レデイ薬局 くすりのレデイ フジ井口店 レデイ薬局 くすりのレデイ フジ井口店
    約782m/10分
  • 広島井口台郵便局 広島井口台郵便局
    約728m/10分
  • 広電井口(広島県) 広電井口(広島県)
    約2307m/29分
  • JR新井口 JR新井口
    約1845m/24分

井口台パークヒルズ壱番館の物件概要OVERVIEW


情報の見方
物件名 井口台パークヒルズ壱番館
所在地 広島県広島市西区井口台3丁目
交通 広島電鉄宮島線井口」駅 徒歩29分
井口台パークタウンバス停バス停下車 徒歩2分
築年月(築年数) 1989年 2月( 築37年 )
種別/構造 売買 / 鉄骨鉄筋コンクリート 階建 12階建
備考 多くの方に好評な、清潔感のある室内が魅力の中古マンションです。広島電鉄宮島線井口周辺にある物件をお探しなら、当社にお任せ下さい。当社はお客様のご希望に適した物件のご紹介ができるよう、全力で努めて参ります。こだわりやご要望があれば、ぜひお聞かせ下さい。

井口台パークヒルズ壱番館へのお問い合わせCONTACT US


オールハウス株式会社

082-236-3596

〒735-0012
広島県安芸郡府中町八幡1丁目4-23 

8:30~18:00  定休日:売買事業部:毎週火・水曜日、年末年始夏季休暇、創業記念日

  • ご購入のご相談
  • ご売却のご相談

マップMAP


※地図上に表示される物件の位置は付近住所に所在することを表すものであり、実際の物件所在地とは異なる場合がございます。

井口台パークヒルズ壱番館の販売物件情報VACANCY INFORMATION

1


会員登録はこちらから

井口台パークヒルズ壱番館の過去に掲載したお部屋ARCHIVE

1


所在階 価格 管理費・共益費 間取り 専有面積 お問い合わせ
1階 ***万円 *** *** *** 空き待ち登録をする

現状の確認はお気軽にお問い合わせください。

ご希望の条件に合う物件の募集が出ましたら、優先的に紹介致します。ご希望条件をご入力いただき、こちらよりお問い合わせください。

空き待ち登録をする

井口台パークヒルズ壱番館へのお問い合わせ contact us


必要項目の入力

0/0
必須項目完了

確認画面へ
お進み下さい

0/0
必須項目完了

確認画面へ
お進み下さい

必須

お名前

必須

メールアドレス

必須

電話番号

任意

内容

【 井口台パークヒルズ壱番館 へのお問い合わせ】

利用規約 及び プライバシーポリシー を必ずお読みください。左記内容に同意いただいた場合は、確認画面へお進みください。

未入力項目があります

井口台パークヒルズ壱番館と地域が近い物件RECOMMENDED


井口台パークヒルズ壱番館と特徴が近い物件RECOMMENDED


井口台パークヒルズ壱番館と最寄駅が近い物件RECOMMENDED


お問い合わせCONTACT US


オールハウス株式会社

会社画像

082-236-3596

営業時間:8:30~18:00  定休日:売買事業部:毎週火・水曜日、年末年始夏季休暇、創業記念日

〒735-0012
広島県安芸郡府中町八幡1丁目4-23 

希望物件リクエスト

トップへ戻る